福井県 福井市 I様邸 天然石 樹の木テラス クレモナプレート ブロンテペイバー

STAFF BLOG

スタッフブログ

福井県 福井市 I様邸 天然石 樹の木テラス クレモナプレート ブロンテペイバー

こんにちはリバーフォレストのマダヨです。

今月は福井市のI様邸の外構工事庭工事の紹介をします。

打ちっ放し擁壁

I様邸は打ちっぱなし擁壁に囲われたお庭です。

玄関から横手の2世帯目の玄関への通路。

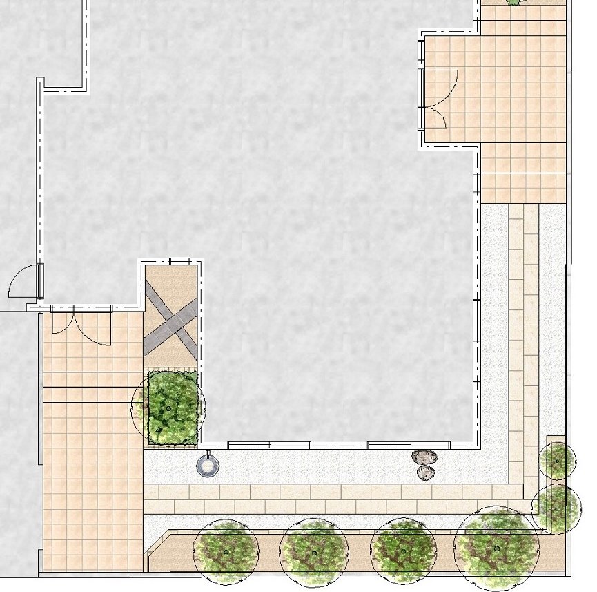
平面図

リビング横の庭スペースガーデニングBBQスペースに使える

くつろぎスペースをご希望でした。

heimenzu

平面図には緑がたくさん入ってます。

完成写真は来週からどんどん紹介していきます。