福井 福井市 お風呂場 リフォーム
こんにちは。リバーフォレストのおくです。
本日はリフォームです。
とあるビルの最上階にある、お風呂場。
いい眺めを活用したリフォームです。
施工前は、格室外機があったり、洗濯物を干したりしていました。
物を撤去したら、こんなにスペースが!
ブルーシートがかかってる側が実は、お風呂場なんです。
この空いたスペース、何かに利用したくないですか?
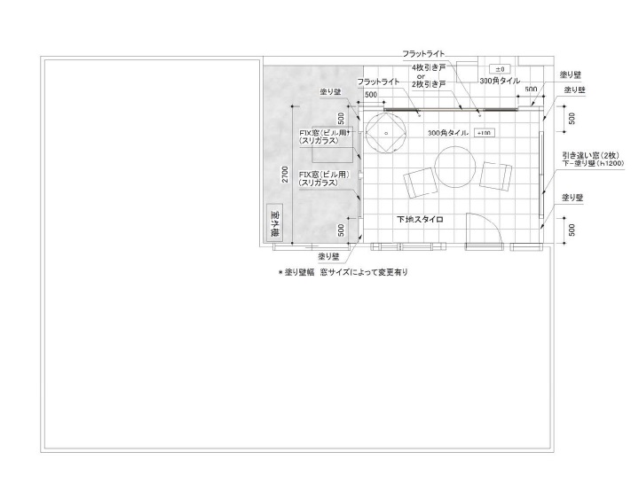
そこでご提案したのがこちらです。
新たに塗り壁して、窓を入れてひとつの部屋に。
床にはタイルを敷きます。
そして、ファニチャーを置く。
お風呂場からそのまま!?出てファニチャーに腰掛け、涼んだりくつろいだりできるスペースです。
カラーパースにすると、このようになります。
お風呂場の中からみたイメージ。
こちらは外から見たイメージです。
ビルの最上階だからこそできる贅沢なスペース♪
とてもうらやましいですね!
現在このプランにて施工中です!
施工後、完成状態の写真はまた次の機会に・・・
他にもたくさんの施工例が載っています!
外構工事、外構リフォームをお考えの方は、リバーフォーレストのホームページをご覧ください!
お風呂場 タイル 塗り壁 ファニチャー 外構リフォーム リバーフォレスト
外構工事





